ВЕНТИЛЯТОРЫ ПЫЛЕВЫЕ
ВЫСОКОГО ДАВЛЕНИЯ

 
НАИМЕНОВАНИЕПроизводи­тельность, м³/часЧастота вращ. об/минМощность двигателя, кВт
ВР 3,5 (1,5-190-А)720 - 300028801,5
ВР 3,5 (2,2-220-А)1020 - 320028802,2
ВР 4 (3,0-240-А)1700 - 540028803,0
ВР 4 (4,0-280-А)1950 - 610028804,0
ВР 4 (5,5-280-А)1940 - 607828805,5
ВР 5 (7,5-280)6900 - 1100028807,5
ВР 5 (11-280)6900 - 11000288011,0
ВР 5 (11-315)10050 - 16000288011,0
ВР 5 (15-315)10050 - 16000288015,0
ВР 6 (18-350)9050 - 18000288018,0
ВР 6 (22-400)11050 - 21500288022,0







Наши вентиляторы на наших обьектах.



Вентилятор радиальный пылевой ВР 3,5
Габаритные и присоединительные размеры





Вентилятор радиальный пылевой ВР 4
Габаритные и присоединительные размеры



Вентилятор радиальный пылевой высокого давления ВР 5

Вентилятор радиальный ВР 5 (7,5-280)


Вентилятор радиальный ВР 5 (11-280)


Вентилятор радиальный ВР 5 (11-315)


Вентилятор радиальный ВР 5 (15-315)

Габаритные и присоединительные размеры








Вентилятор радиальный пылевой высокого давления ВР 6
Габаритные и присоединительные размеры





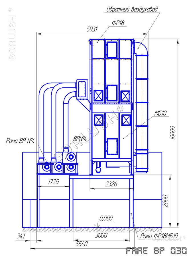
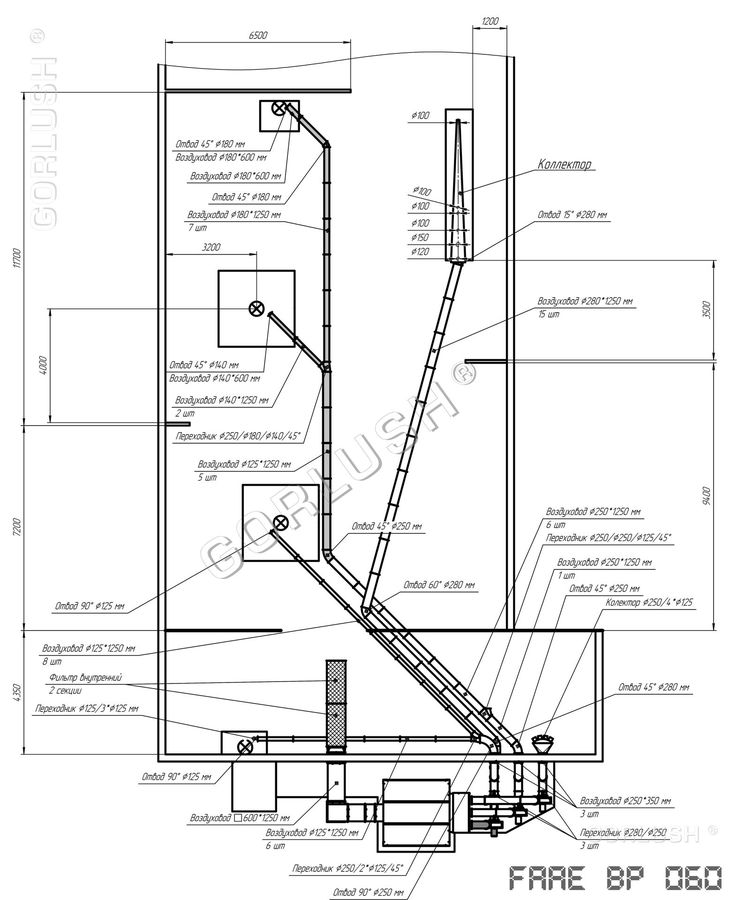
Аспирационные системы изготовленные и смонтированные нами.

Из архивов.



На наших обьектах.





Общие виды и применение наших вентиляторов.